︎
WORK
ABOUT
PRESS
CONTACT
︎
Mark
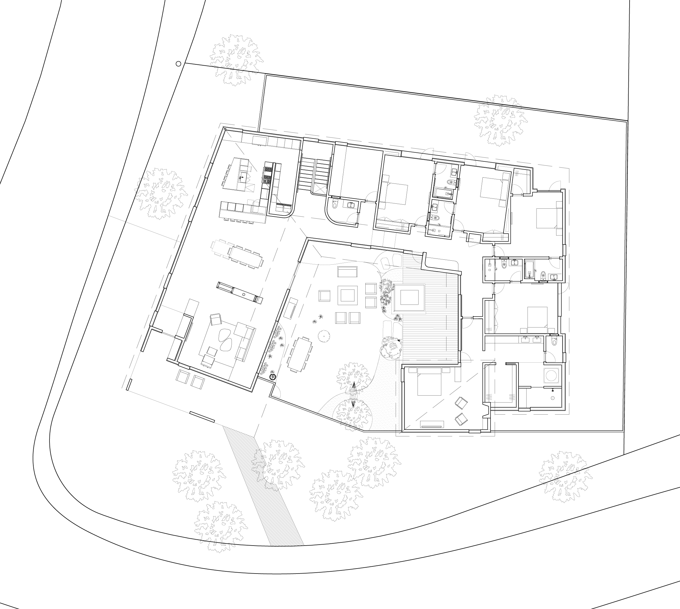
ST MORITZ
BIG BEAR LAKE, CA
Permitting Phase
PROJECT TEAM:
Mike Jacobs, Eliana Drier, Isabella Krebs